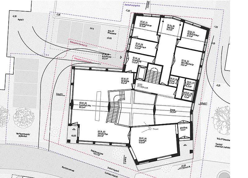
Eine Machbarkeitsstudie vom 23. August 2018 der Locher Architekten GmbH zeigte, dass ein neues Verwaltungsgebäude mit dem vorgesehenen Raumprogramm und einer Geschoßfläche von rund 3700 m2 sowie einem Volumen von rund 12.000 m3 am vorgesehenen Standort realisierbar ist. Der Kanton Appenzell Innerrhoden hat sich entschieden, das Projekt für den Neubau des Verwaltungsgebäudes über einen selektiven, anonymen Projektwettbewerb zu evaluieren.
Auslober
Amt für Hochbau und Energie des Kantons Appenzell Innerrhoden (CH)
Standort
Dorfzentrum von Appenzell
Art des Wettbewerbs
Projektwettbewerb im selektiven, anonymen Verfahren
Preisgerichtssitzung
17. August 2020
Jury
Sachpreisrichter:
Ruedi Ulmann, Bauherr (Vorsteher Bau- und Umweltdepartement AI)
Jakob Signer, Landesfähnrich (Vorsteher Justiz-, Polizei- und Militärdepartement AI)
Markus Dörig, Ratschreiber
Fachpreisrichter:
Corinna Menn, dipl. Arch. ETH/SIA, Chur
Werner Binotto, dipl. Arch. HBK/BSA/SIA, St. Gallen
Martin Bauer, dipl. Arch. ETH/BSA/SIA, Zürich
Niklaus Ledergerber, Denkmalpfleger Stadt St. Gallen / Präsident Fachkommission Denkmalpflege Appenzell Innerrhoden
1. Preis
Cukrowicz Nachbaur Architekten ZT GmbH, Bregenz
Projektbeurteilung (Juryprotokoll-Auszug)







